Advertisement Advertisement



Laboratori dell’Università degli Studi dell’Insubria

È terminata l’edificazione dei laboratori chimico-ambientali del Dipartimento di Scienza e Alta tecnologia dell’Università degli Studi dell’Insubria, luogo studiato per il benessere e il comfort di studenti e ricercatori.  Lo studio Ishimoto Europe, al quale è stata affidata la progettazione di tale opera, ha scelto di proteggerne l’involucro e garantirne le prestazioni rivestendolo con DuPont™ Tyvek® UV Facade, una speciale membrana traspirante protettiva contro i raggi UV, specificatamente studiata per l’applicazione a facciate ventilate.

 

La facciata nord del nuovo edificio adibito a laboratori chimici del Dipartimento di Scienza e Alta tecnologia dell’Università degli Studi dell’Insubria, Como. La costruzione beneficia dell’installazione della membrana avanzata traspirante DuPont™ Tyvek® UV Facade, sviluppata specificatamente per proteggere l’isolamento e la struttura di edifici con facciate a giunti aperti o ventilate dagli effetti dei raggi del sole, vento e umidità per oltre 50 anni.
La facciata nord del nuovo edificio adibito a laboratori chimici del Dipartimento di Scienza e Alta tecnologia dell’Università degli Studi dell’Insubria, Como. La costruzione beneficia dell’installazione della membrana avanzata traspirante DuPont™ Tyvek® UV Facade, sviluppata specificatamente per proteggere l’isolamento e la struttura di edifici con facciate a giunti aperti o ventilate dagli effetti dei raggi del sole, vento e umidità per oltre 50 anni.

 

DuPont™ Tyvek® UV Facade è l’unica membrana protettiva per applicazioni a facciate con giunti aperti a portare il marchio CE, che attesta la piena conformità alla rigorosa normativa europea in materia di prodotti edili.  Per ottenere il marchio CE per l’applicazione a facciate con giunti aperti, una membrana deve resistere all’invecchiamento artificiale dato dall’esposizione permanente a raggi UV per 5000 ore (per applicazioni standard a pareti/tetti il criterio è 336 ore.)

2

Il cubo di 3.000 metri quadrati e costituito da sei piani, è stato progettato per ospitare dai 25 a 30 laboratori per la ricerca scientifica.  La facciata (nord) della sede di questo edificio dallo stile sobrio, pulito e lineare, è stata progettata come facciata ventilata, dietro la quale è stata applicata DuPont™ Tyvek® UV Facade, che fornisce dei benefici sia in termini di protezione della struttura dagli effetti negativi delle intemperie, sia in termini di sostenibilità e economicità, grazie a prestazioni termiche ottimali. Inoltre, DuPont™ Tyvek® UV Facade protegge i materiali isolanti installati dietro il rivestimento esterno, prevenendo così i danni dell’umidità e preservandone le prestazioni.

3

Il nuovo edificio, allo stesso tempo funzionale ed elegante, è stato progettato con un involucro composto da uno strato strutturale in calcestruzzo armato, uno strato isolante in polistirene, la membrana ermetica all’aria DuPont™ Tyvek® UV Facade e da un rivestimento in acciaio Corten A traforato che ne impreziosisce il risultato.

L’esigenza di introdurre un manto che garantisse ottima resistenza a vento, acqua e raggi UV doveva essere combinata con la necessità di impiegare un materiale che permettesse la permeabilità al vapore, onde evitare il ristagno di eventuali condense o umidità residue nello strato isolante posto a diretto contatto con un sistema a setti in calcestruzzo armato.
La membrana DuPont™ Tyvek® UV Facade è di colore nero, che oltre a essere discreto garantisce durevolezza e resistenza ai raggi UV necessarie nel caso di facciata ventilata, essendo la superficie investita regolarmente dalla radiazione solare diretta.

4

I vantaggi della membrana vanno al di là della protezione dagli agenti atmosferici, apportando il massimo comfort e un’elevata efficienza energetica.
DuPont™ Tyvek® UV Facade ha uno strato funzionale con uno spessore di 225 µm e oltre a essere altamente resistente a raggi UV, è leggero, robusto e  facile da installare e resistente ai danneggiamenti che possono incorrere in fase di installazione.
DuPont ™ Tyvek® UV Facade è certificata CE ed ha superato rigorosi test di resistenza a 5000 ore di esposizione permanente ai raggi UV.  La particolare struttura della membrana è composta da millioni di microfibre di polietilene altamente stabilizzate che creano una texture che garantisce una corretta e omogenea diffusione di additivi UV e termici per offrire una superiore durevolezza e un’elevata resistenza nel tempo ai danni causati da calore e raggi solari.

5

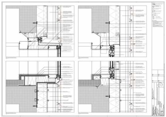
L’edificazione della struttura è stata affidata alla società Airaudo Costruzioni di Cuneo, che ha costruito una facciata ventilata con un rivestimento esterno in acciaio Corten A traforato.  La stratificazione funzionale della soluzione costruttiva prevista dal progetto è composta da uno strato di supporto murario (sp. 250 mm), uno strato di isolamento di spessore 100+50 mm, da uno strato di tecno membrana traspirante DuPont™ Tyvek® UV Facade, da uno strato di ventilazione di spessore variabile tra 170 e 200 mm, da una struttura portante in alluminio, e infine dalla finitura esterna in lastre di acciaio traforato.

 

Disegni tecnici che mostrano la stratificazione della facciata ventilata dell’edificio adibito a laboratori chimici del Dipartimento di Scienza e Alta tecnologia dell’Università degli Studi dell’Insubria. Al di sotto della copertura in acciaio Corten A traforato, si alternano supporto murario, isolamento, la tecno membrana traspirante DuPont™ Tyvek® UV Facade, uno strato di ventilazione di spessore variabile e una struttura portante in alluminio.
Disegni tecnici che mostrano la stratificazione della facciata ventilata dell’edificio adibito a laboratori chimici del Dipartimento di Scienza e Alta tecnologia dell’Università degli Studi dell’Insubria. Al di sotto della copertura in acciaio Corten A traforato, si alternano supporto murario, isolamento, la tecno membrana traspirante DuPont™ Tyvek® UV Facade, uno strato di ventilazione di spessore variabile e una struttura portante in alluminio.

 

Università Degli Studi Dell’Insubria – Istituita il 14 luglio 1998, le sedi di Varese e Como sono riunite sotto un unico logo, quello dell’Insubria, dal nome dell’antico popolo che risiedeva in questa specifica area del territorio lombardo, gli Insubres.  Insediato in un’area fortemente industrializzata e collocato in una posizione strategica, l’Ateneo in questi anni è diventato un riferimento costante per il territorio.

Piantina dell’area dell’ateneo comasco.
Piantina dell’area dell’ateneo comasco.

L’Università dell’Insubria – con i suoi ventimila laureati e con una fitta rete di iniziative a carattere divulgativo aperte alla cittadinanza – è strumento di crescita culturale e promozione sociale.  L’offerta formativa, costituita da numerosi corsi di Laurea, Laurea Magistrale, Dottorati di Ricerca e Scuole di Specializzazione, tiene conto delle esigenze del mondo del lavoro e spazia in numerosi ambiti disciplinari. Il tasso di occupazione dei laureati dell’Insubria sia triennali che magistrali è di gran lunga superiore alla media italiana ed è uno dei punti caratterizzanti l’Università: il 61% dei laureati triennali Insubria lavora contro una media nazionale del 41%. Anche per i laureati specialistici dell’Insubria si registrano risultati migliori rispetto ai “colleghi” di altri Atenei: lavora il 62% contro una media del 55% (Fonte XVI Rapporto Almalaurea – 2014).
L’Ateneo da sempre presta particolare attenzione alla ricerca, sia applicata che di base condotta in laboratori all’avanguardia e nei centri di ricerca di ciascuna sede, che ha permesso ai suoi ricercatori di ottenere numerosi premi e prestigiosi riconoscimenti internazionali.

In pochi anni l’Università dell’Insubria è passata da quattromila a diecimila iscritti circa, da centrotrenta docenti a quasi quattrocento ed è inoltre riuscita ad attrarre su di sé l’attenzione internazionale, attirando un numero crescente di studenti e dottorandi stranieri e di visiting professors provenienti da ogni parte del mondo.



Consiglia questo progetto ai tuoi amici

Commenta questo progetto