Intrecci: nuove trame urbane a Chiuppano

Progetto di riqualificazione urbana, architettonica e paesaggistica dell’ex Cotonificio Rossi a Chiuppano (VI).

IMMAGINE 1_Vista di progetto-chiuppano
Vista di progetto ©Michele Cappellotto

Indice degli argomenti:

Intrecci è un progetto che nasce dall’intento di riportare vita ed ordine in un brano dimenticato della cittadina di Chiuppano, l’ex Cotorossi, uno dei numerosi vuoti dismessi ereditati dall’attività imprenditoriale novecentesca della Famiglia Rossi nell’Alto Vicentino. Lo stabile, attualmente in condizioni di rovina, si caratterizzava in origine per due porzioni morfologicamente e spazialmente distinte: una meridionale, più articolata e plastica, considerata area monumentale e una posteriore più seriale, corrispondente alla zona produttiva, dove 258 colonne in ghisa scandivano il passo di 9 campate.

EX Cotorossi, operaie al lavoro, - archivio fotografico di Chiuppano Fondo Giacomello
Cotorossi, operaie al lavoro. Courtesy Archivio Fotografico di Chiuppano, Fondo Giacomello ©Michele Cappellotto

Nel complesso i lavori di cantierizzazione dei diversi Piani Attuativi hanno portato alla rimozione volontaria di tutti i sostegni puntuali, delle soprastanti coperture a Shed, di numerose porzioni del perimetro, generando una condizione di “storia accelerata”. Permangono ancora il portale d’ingresso incorniciato da lesene; la ciminiera; la casa dell’ex capo officina; la casa del custode; diffuse porzioni di muratura esterna.

EX Cotorossi, sedime originario dello stabilimento
Ortofoto dell’area di progetto con evidenziato il sedime originario dello stabilimento ©Michele Cappellotto

Cotonificio Rossi assetto attuale 2019
Cotonificio Rossi: assetto attuale (2019) ©Michele Cappellotto

Visione territoriale

L’analisi delle potenzialità latenti dell’immediato intorno del complesso, caratterizzato dalla presenza dell’ambito di interesse naturalistico e collinare delle Bregonze; dal Torrente Astico; dalla programmata Ciclovia Vicenza-Chioggia; dal patrimonio di centrali idroelettriche ha evidenziato possibilità di sviluppo turistico della zona. La promozione genuina di un tipo di fruizione lento ed intellettualmente attivo del patrimonio paesaggistico, architettonico e museale dell’intorno, se correttamente amministrata, potrebbe generare benefici diretti ed indiretti sui residenti, permettendo la rigenerazione di ulteriori vuoti dismessi come la configurazione del Cotorossi quale punto di prima accoglienza di un sistema di nuove trame urbane e territoriali.

Progetto di riqualificazione a Chiuppano, nuove trame urbane
Nuove trame territoriali e urbane -©Michele Cappellotto

Memoria

Il concetto architettonico muove le proprie premesse dalla volontà di riportare in luce la caratteristica scansione della zona produttiva mediante l’impiego di 9 rigidi setti murari congruenti all’originaria scansione delle campate, permettendo così l’instaurazione di nuovi rapporti con le porzioni di perimetro ancora integre.

Alla ragione si fa spazio il sentimento, con la realizzazione di un sistema di corti che divengono piacevoli pause verdi a disposizione dei residenti. Due assi ortogonali tagliano la composizione permettendo al fruitore di apprezzare nel loro punto di intersezione l’originaria profondità spaziale del fabbricato ad oggi non più chiara mentre un nuovo percorso pedonale connette il nuovo insediamento al sottostante complesso della “Rozzolla”, destinato in origine alla produzione dell’energia utile a movimentare i telai della fabbrica.

Ex Cotorossi a Chiuppano, attacco a terra e prospetto Sud
Attacco a terra e prospetto Sud ©Michele Cappellotto

Custodia

Il concetto di presidio quale rimedio alla cancellazione del patrimonio storico-monumentale ha guidato la formulazione del programma funzionale che prevede lo stanziamento nell’ex Cotonificio di uno spazio didattico; di un housing legato ad un principio insediativo denso; un co-housing con guest house ed altri servizi condivisi; di una caffetteria studiata per essere fruita principalmente da ciclisti (Bicigrill); di un maneggio con campo di prova coperto.

Quest’ultima funzione vuole aprire il progetto ai diversamente abili del vicino centro diurno proponendo spazi adeguati alla pratica dell’ippoterapia, come si pone l’obiettivo di promuovere nuove modalità di fruizione della rete sentieristica prossima all’ex Cotorossi in fase di valorizzazione grazie alla pianificazione di un Parco Agricolo a scala sovracomunale. Il posizionamento delle funzioni più pubbliche avviene all’esterno del perimetro esistente, garantendone un elevato livello di permeabilità mentre quelle più intime vengono adagiate nella parte più seriale e riservata.

Ex Cotorossi- Vista di progetto area monumentale
Vista di progetto: area monumentale – ©Michele Cappellotto

Palinsesti

Lo spazio didattico viene organizzato mediante la compenetrazione secondo uno schema ad “L” di due sale indipendenti, la cui intersezione genera il punto di smistamento e prima accoglienza dei visitatori, a cui si accede passando attraverso il vecchio portale di ingresso. Il complesso costituito dal maneggio si caratterizza per il riutilizzo della casa del custode e prevede un’infilata di locali dalla zona di ricevimento fino al blocco spogliatoi e selleria – passante per alcuni locali utili al lavoro d’equipe dei terapisti. Il blocco scuderie, invece viene posto in mezzeria tra le pertinenze esterne costituite dagli ambiti di stabulazione libera; dal campo di prova esterno; dal fienile;

Il co-housing occupa tutto il sedime dell’ultima campata a Nord del progetto e si distingue per una grande zona comune con doppio volume affacciata ed aperta sul sistema di corti verdi, ricevente tutti i flussi interni provenienti dagli appartamenti di piccola pezzatura, dalla biblioteca spontanea, dalla palestra, dalla lavanderia condivisa. L’impiego di una serie di finestre dalla morfologia più snella e dalla disposizione più ordinata, regalano agli appartamenti una visione frammentata del paesaggio costituito dalla forra dell’Astico.

La caffetteria occupa il sedime dell’ex magazzino, riproponendone la volumetria in alzato grazie ad elementi contemporanei: una lunga finestra a nastro taglia il fronte principale della funzione, sulla lezione di Eduardo Souto De Moura a Santa Maria do Bouro. All’interno del caffè, tutti gli spazi di servizio vengono raggruppati in un grande arredo capace di suggerire al visitatore la grande spazialità che contraddistingueva questo ambiente in origine.

Ex Cotorossi, Spazi residenziali, Co housing
Vista di progetto: Spazi residenziali, Co housing – ©Michele Cappellotto

Abitare

Le residenze vengono studiate per fare fronte alle neonate esigenze del vivere contemporaneo: nomadismo; temporaneità; desiderio di appartenenza ad una comunità. L’abitazione dall’impostazione più tradizionale, sviluppata su due livelli, prevede la concentrazione di tutti gli ambiti serventi al centro, permettendo così alla casa di avere un doppio affaccio ed un baricentro.

Ex Cotorossi, Vista di progetto spazi residenziali
Vista di progetto, spazi residenziali – ©Michele Cappellotto

Baricentro che garantisce l’interpretazione da parte dei residenti dello spazio interno, in grado di generare infinite configurazioni spaziali proporzionate alle esigenze degli occupanti.  La continuazione dei setti oltre lo spazio riscaldato al piano terra connette spazio domestico al giardino esterno mentre al piano primo le logge divengono un delizioso spazio esterno. Il sistema ombreggiante viene realizzato con raffstore al fine di avere combinazioni di facciata ogni giorno diverse mentre gli infissi vengono previsti in alluminio-legno con triplo vetro.

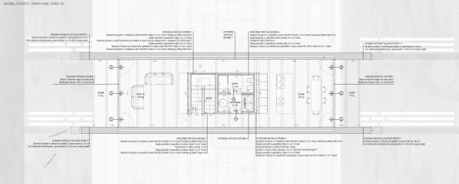
EX cotorossi, Esecutivo di un'abitazione
Esecutivo architettonico: pianta di un’abitazione – ©Michele Cappellotto

Sistema costruttivo

Ai segni caratterizzanti la composizione (i setti) viene sovrapposta la struttura portante, ciò che da sempre è necessario ed indispensabile – quindi anonimo – mentre ciò che è caduco e che necessita di interventi manutentivi o sostituzioni viene realizzato con tecnologia a secco. Lo scheletro massivo dell’intervento costituito dai muri (50 cm di spessore totale – U = 0,11 W/m2K) viene realizzato in calcestruzzo con nucleo isolante in EPS di 20 cm: ipotesi appropriata rispetto alle necessità di isolamento termico, acustico e sismico a cui l’ex novo deve oggi rispondere.

Grazie all’impiego di un sistema di zanche in acciaio strutturale, alle nuove pareti in aderenza al perimetro esistente in pietrame, viene demandata anche la funzione consolidante della preesistenza. L’appropriatezza del sistema costruttivo è particolarmente evidente nel punto di transizione tra parete esistente in pietra (60 cm di spessore totale circa) e il nuovo costruito, dove l’intercapedine isolante in EPS diviene un vero e proprio “cuscinetto” capace di fungere da giunto sismico. L’impiego di una granulometria il più grezza possibile da realizzarsi con inerti calcarei di matrice giallastra genera una sottile relazione di complicità con gli intonaci ancora intatti del perimetro del Cotonificio (poco raffinati e di colore ocra) mentre la scelta di un trattamento a vista del materiale è in linea con l’intenzione di conferire all’intervento un certo carattere industriale, specchio dell’essenza primigenia della situazione ante progetto.

Ex Cotorossi- Vista di progetto esterni
Vista di progetto: esterni – ©Michele Cappellotto

Per la realizzazione delle partizioni verticali interne delle abitazioni viene ipotizzato l’impiego di pannelli multistrato in legno tipo X-LAM dalla profondità di 6 cm con successiva intercapedine impiantistica con isolante in lana di roccia interposto e pannelli in gessofibra finiti con tinteggio bianco.

La copertura (spessore totale 45 cm – U = 0,18 W/m2K) prevede un pacchetto traspirante realizzato con l’impiego di travi in legno lamellare in legno di larice non trattato, tavolato in perline irrigidente, isolamento in fibra legno in 3 strati, tessuto non tessuto, intercapedine areata per l’asportazione di eventuale condensa accumulata e successivo manto di copertura in tegole marsigliesi, in omaggio alle coperture a shed di un tempo.

Vista la natura alluvionale del terreno in questione, la chiusura orizzontale inferiore (spessore totale 84 cm  – U = 0,12 W/m2K ) viene realizzata invece in modo superficiale con il collaudato binomio magrone-platea di fondazione, membrana antiradon e antiumidità, isolamento in XPS, feltro anticalpestio, caldana impiantistica, strato di usura in calcestruzzo corrazzato.

Le partizioni orizzontali interne sono risolte con l’utilizzo di travi in legno lamellare, tavolato in perline, intercapedine impiantistica in argilla espansa con magatelli e modulo radiante. Il fissaggio delle travi alle pareti esistenti in calcestruzzo, realizzato con piastre angolari ad L ancorate tramite tasselli ad espansione, garantisce un facile smontaggio della divisione orizzontale una volta mutati i bisogni dei residenti.

La gestione dei dettagli del campo di prova coperto del maneggio rispecchia l’esigenza di conciliare un approccio costruttivo reversibile con la necessità di coprire luci molto più ampie: un sistema di travi in legno lamellare raccorda i setti contrapposti, costruendo con la struttura controventante un piacevole effetto cassettonato marcato dalle installazioni illuminotecniche.

All’esterno, la serie di muri diventa un susseguirsi di nicchie attrezzate con seduta la cui paratassi permette di incorniciare il vicino borgo di Tezze.

L’analisi preliminare delle possibilità di rendere il complesso autosufficiente dal punto di vista energetico ha dato risultati promettenti: il posizionamento di una serie di stringhe di pannelli fotovoltaici sulle falde rivolte a Sud del complesso (240 kWp – 245 000 kWhe/anno prodotti) – dove non di disturbo ai fini di tutela paesaggistica ed architettonica – unito all’uso di una pompa di calore geotermica garantisce la copertura completa di tutto il fabbisogno di luce e forza motrice; acqua calda sanitaria; fabbisogno invernale per riscaldamento e fabbisogno estivo per raffrescamento (in totale equivalenti a 174 000 kWhe/anno). Copertura garantita anche dal fabbisogno ridotto delle abitazioni (6 Kwh/m2anno) reso possibile dall’uso di un sistema di ventilazione meccanica controllata; da un sistema di riscaldamento e raffrescamento con pannelli radianti a pavimento. Sistemi impiantistici di facile manutenzione e di facile accesso, in quanto alloggiati totalmente nelle parti interne realizzate a secco.

Ex cotorossi-il Modello di riqualificazione
Modello d’autore -©Michele Cappellotto

Duttilità

Peculiarità di Intrecci è quella di promuovere un’idea di sostenibilità legata ad un concetto di immanenza dell’architettura. Immanenza correlata alla flessibilità insita nel progetto. Se le esigenze della comunità di Chiuppano muteranno in futuro la costruzione potrà essere facilmente riadattata a nuove istanze senza limitare in alcun modo l’affermazione di ulteriori scenari di recupero. Immanenza che, palesata da un sistema costruttivo chiaro, semplice ed anonimo anima un progetto capace di manifestarsi attraverso una forma espressiva, adatto a costruire nuovi palinsesti ed in grado, infine, di accogliere la vita.


Approfondimento realizzato in collaborazione con Architettura>Energia, centro ricerche del Dipartimento Architettura dell’Università degli Studi di Ferrara.


Crediti

Tesi di laurea magistrale in architettura

Università degli Studi di Ferrara

Anno Accademico 2018/2019

Relatori: prof. Silvia Brunoro, prof. Andrea Rinaldi

Correlatori: prof. Roberto Di Giulio, prof. Giacomo Bizzarri

Consiglia questo approfondimento ai tuoi amici

Commenta questo approfondimento