Scuola materna di Sluderno: l’educazione sostenibile del legno secondo Roland Baldi

A Sluderno (Bolzano), Roland Baldi realizza una scuola in legno che unisce la sostenibilità con l’educazione, in un connubio elegante e discreto, mai banale. Il progetto ha vinto il Wood Architecture Prize 2023, nella categoria “Architettura pubblica”

A cura di:

Scuola materna di Sluderno: l’educazione sostenibile del legno secondo Roland Baldi

Sorge a Sluderno, un piccolo comune nell’estremo nord Italia della Provincia autonoma di Bolzano in Trentino-Alto Adige, la scuola materna attenta alla sostenibilità e dedita all’educazione a misura di bambino, opera di Roland Baldi Architects. Frutto di un concorso di architettura risalente al 2012, è stata ultimata nel 2018.

Vincitrice del Wood Architecture Prize 2023 assegnato a Klimahouse, risultata tra i migliori progetti in legno Klimahouse, prima nella categoria “Architettura pubblica”. Gli fanno compagnia il progetto Casa 4 firmato dall’Architetto Luca Compri di LCA Architetti (vincitore nella categoria “Architettura privata”) e l’Hotel La Briosa degli architetti altoatesini Felix Perasso e Daniele Tolpeit (vincitore nella categoria “Architettura sperimentale”).

La giuria vanta personalità di spicco del panorama accademico e scientifico: presieduta dall’Architetto Sandy Attia dello Studio Modus Architects era composta dal Prof. Guido Callegari del Politecnico di Torino, dall’Arch. Mauro Frate dello Studio MFA Architects e già docente a contratto Iuav, dal Prof. Roberto Gargiani dell’EPFL Ecole Polytechnique di Losanna, dall’Arch. Manuel Benedikter, dal Prof. Paolo Simeone del Politecnico di Torino e da Luca Gibello, Direttore de Il Giornale dell’Architettura.

Il legno – ha spiegato la giuria – svolge funzione strutturale nelle pareti in CLT disegnando gli spazi interni principali spesso senza soluzione di continuità tra serramenti e controsoffitti”.

Wood Architecture Prize by Klimahouse

La prima edizione del premio nazionale dedicato all’architettura in legno, Wood Architecture Prize by Klimahouse, istituito da Fiera Bolzano in collaborazione con il Politecnico di Torino e lo Iuav di Venezia, ha visto primeggiare nella categoria “Architettura pubblica”, tra le migliori architetture in legno, il progetto di Roland Baldi Architects per la scuola materna di Sluderno, Paese della provincia autonoma di Bolzano.

Il Wood Architecture Prize, il primo premio a livello nazionale per l’architettura in legno, intende promuovere la conoscenza delle diverse possibili interpretazioni del costruire in legno attraverso la selezione di opere, in grado di rappresentare i diversi contesti applicativi e di sperimentazione: nuove costruzioni, interventi di riqualificazione, sostituzione e ricostruzione, opere sperimentali.

I progetti vincitori del Wood Architecture Prize by Klimahouse 2023

L’industria delle costruzioni è responsabile di oltre un terzo di tutti i rifiuti prodotti in Europa e di circa il 40% delle emissioni di Co2 secondo il report della Global Alliance for Buildings and Construction. Di conseguenza, ha allo stesso tempo il potenziale per contribuire in modo sostanziale al risparmio delle emissioni e alla rigenerazione delle risorse. Il dibattito europeo ha individuato da tempo nel legno una risorsa strategica per trasformare il settore edile in un modello di economia circolare in grado di contrastare anche la crisi climatica.

I 3 progetti premiati (arch. Privata/pubblica/sperimentale), sui 64 in gara, sono realizzazioni concrete e testimoni di come la sostenibilità, l’efficienza e il design possono convivere in armonia, tracciando la strada da seguire in linea con gli obiettivi comunitari per un impatto climatico zero entro il 2050.

Caratterizzata da linee chiare ed elementi riconoscibili, che dialogano d’intesa con il contesto, grazie anche all’utilizzo del legno, la scuola interpreta pienamente i valori di sostenibilità ambientale, economica e sociale.

Scuola materna di Sluderno: l’educazione sostenibile del legno secondo Roland Baldi

Questo progetto è stato scelto per l’equilibrio spaziale e la raffinatezza formale nella definizione di un ambiente a misura di bambino, dove continue variazioni di scala alimentano un’esperienza percettiva ricca e coinvolgente. Il sistema delle bucature, la loro collocazione e misura, connota una stereometria immaginata in relazione di continuità con il tessuto edilizio circostante a dichiararne la funzione pubblica di uso collettivo. Il legno svolge funzione strutturale nelle pareti in CLT disegnando gli spazi interni principali spesso senza soluzione di continuità tra serramenti e controsoffitti.

Concept e idea

Il comune di Schluderns, situato in una valle d’Alto Adige che collega Italia, Austria e Svizzera, è un territorio dove cure del paesaggio e sviluppo sostenibile si intrecciano con un’alta qualità della vita e una particolare attenzione verso l’architettura.

Un dettaglio della Scuola materna di Sluderno che vede il legno come protagonista

Il progetto è il risultato di un concorso di architettura vinto nel 2011. Il compito era quello di realizzare una scuola materna con tre sezioni e i relativi spazi funzionali. La nuova scuola si colloca fra gli edifici esistenti in modo da completare il tessuto urbano del piccolo centro cittadino. L’accesso avviene da una piazzetta pubblica che si inserisce all’interno di una più ampia area pedonale.

L'accesso dalla piazza alla Scuola materna di Sluderno

Già nelle prime fasi del progetto, è stato dato grande valore alla creazione di un edificio dalle linee chiare e dagli elementi riconoscibili che si armonizzasse con il contesto.

Gli interni in legno della Scuola materna di Sluderno

L’idea alla base era quella di dare all’architettura la forma iconografica di una casa per creare un ambiente amichevole e familiare per i bambini.

Spazi a misura di bambino

Con la Scuola materna di Sluderno, Roland Baldi Architects ha realizzato una costruzione in legno, sostenibile e a misura di bambino. Il tetto a falde, la facciata intonacata e le grandi finestre, sfalsate fra di loro, ricordano il disegno di un bambino riportato alle dimensioni reali.

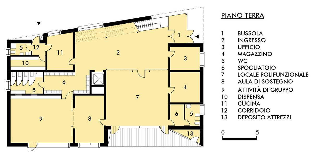
Pianta del piano terra della Scuola materna di Sluderno

L’edificio si articola su due livelli. Il piano terra è dedicato alle attività più collettive e di aggregazione: oltre a ufficio, magazzino e cucina con dispensa, ci sono locali polifunzionali e dediti alle attività di gruppo.
Completano la dotazione i bagni e gli spogliatoi.

Pianta del primo piano della Scuola materna di Sluderno

Il piano primo è dedicato principalmente alle aule per attività di sostegno e di gruppo. Non mancano spazi ricreativi, bagni spogliatoi, magazzino e spazi tecnici.

Sezione della Scuola materna di Sluderno

Al piano superiore il tetto a falde genera uno spazio articolato in diverse altezze.

All’interno, tutti gli ambienti sono accessibili tramite l’ampio e luminoso foyer, che è il cuore funzionale dell’edificio ed è anche un’area di benvenuto, relax e gioco. Le aule, con i loro spazi per le attività di gruppo e di sostegno, sono orientate verso sud, in favore della luce e con affacci verso l’area gioco e il giardino.

Gli interni in legno della Scuola materna di Sluderno

I mobili in legno, come sgabelli, tavoli e armadietti, progettati su misura, insieme ai colori utilizzati, trasmettono una sensazione di calore, umanità e sicurezza.

Gli arredi in legno della Scuola materna di Sluderno

All’interno il legno invade lo spazio, con discrezione e brio, accostandosi con eleganza alle cromaticità bianche dell’intonaco.

Legno e sostenibilità

Adatto ai bambini e sostenibile: con la Scuola materna di Sluderno, Roland Baldi Architects ha realizzato un edificio in legno, dove il tetto a falde, le facciate intonacate e le finestre, di forme diverse e disposte in modo apparentemente casuale, ricordano il disegno di un bambino ma di grandi dimensioni. In questo, evoca alcune opere dell’architetto africano Francis Kéré, Premio Pritzker 2022 (come ad es. il Centre for Health and Social Welfare e la Clinica chirurgica e centro sanitario di Léo, entrambi realizzati nel 2014).

Le finestre dalle forme diverse della della Scuola materna di Sluderno

Dal punto di vista tecnico l’intera scuola è stata costruita con pannelli strutturali di legno, tipo Xlam o Crosslam o CLT (Cross Laminated Timber), tecnica che evoca l’asilo di Cucinella a Guastalla. L’uso di questo materiale ritorna nei tagli che individuano gli ingressi e nelle generose imbotti delle finestre che caratterizzano in modo espressivo le facciate intonacate di bianco.

Le finestre dalle forme diverse della della Scuola materna di Sluderno

All’interno continua l’alternanza tra legno e superfici intonacate, con una la predominanza al legno per le finiture, le porte, i soffitti e gli arredi che si completano con l’uso di colori diversi per differenziare le diverse sezioni della scuola.

Gli interni della Scuola materna di Sluderno

Al fine di aumentare ulteriormente la sostenibilità ambientale, l’edificio è stato dotato di un tetto verde e progettato rispettando gli standard energetici di “Casa Clima A”, uno standard che promuove lo sviluppo sostenibile nell’edilizia e i suoi obiettivi sono l’efficienza energetica e il rispetto dell’ambiente.

Tetto verde per la Scuola materna di Sluderno

Roland Baldi Architects ha creato un asilo che aspira ad essere un modello di scuola Montessori per l’infanzia da prendere a riferimento come architettura dell’educazione virtuosa. Un’opera che strizza l’occhio ai maestri giapponesi del Fuji Kindergarten, cercando un dialogo sincero con l’ambiente naturale e l’essere umano.



Consiglia questo progetto ai tuoi amici

Commenta questo progetto