START-Ivry, un nuovo concetto di housing sociale dove il progetto è dettato dal sistema di vita 24/12/2025
I materiali compositi: innovazione strutturale e libertà progettuale nell’architettura contemporanea 12/01/2026
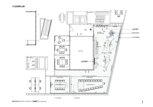
La mera presentazione di prodotti nello showroom è ormai storia passata. Oggi la comunicazione è la parola magica per una nuova performance di prodotto che coinvolga e entusiasmi i clienti. È naturale che una società come la Microsoft sia progressista anche in quest’area e ciò è stato dimostrato in modo strabiliante dal nuovo Microsoft Briefing Center a Wallisellen in Svizzera. Qui il contenuto della presentazione non viene semplicemente esposto, ma, con l’aiuto di tecnologie proprie Microsoft quali, KINECT, X-BOX, SURFACE, ecc, instaura anche un dialogo interattivo con i clienti i cui movimenti fisici controllano il software, trasformandoli in una parte attiva di ciò che sta succedendo. I nuovi concetti di presentazione di questo tipo non possono essere realizzati con design convenzionali e materiali vecchi e conosciuti. Si cercano creativi che capiscano come integrare materiali innovativi nei loro progetti. Gli architetti del team di design interdisciplinare del COASToffice di Stoccarda, ad esempio, hanno optato per HI-MACS® come materiale ideale e, in linea con lo slogan HI-MACS®, “The New Generation. Inspired by Architecture”, hanno creato nuovi spazi originali e straordinari in termini di funzione e design. Grazie alla sua versatilità, HI-MACS® è virtualmente predestinato ad affrontare nuove sfide quali la progettazione di uno spazio dinamico e tecnologico come quello richiesto a Wallisellen. Le proprietà specifiche della Pietra Acrilica di Nuova Generazione la rendono malleabile tanto da rappresentare la soluzione ideale per i design tridimensionali. Le qualità tattili della superficie liscia e termoformata di HI-MACS® non ne ostacolano l’utilizzo in sale ad alta frequentazione: questo materiale non poroso, resistente all’acqua e facile da pulire è anche estremamente robusto. Forme fluttuanti, comunicazione efficace Il nuovo Microsoft Briefing Center si trova al primo piano della sede centrale della Microsoft Schweiz GmbH. Intorno a una corte spaziosa, si sviluppano la cosiddetta “Product Lounge” nella zona anteriore e due sale da conferenza e per le presentazioni di ‘dimensioni’ diverse nella zona posteriore. Al centro della Product Lounge si erge un mobile scultoreo realizzato in HI-MACS®, per le finalità della lounge e per finalità comunicative, che si suddivide in diverse zone su un’area di circa 100 metri quadri. Sia la “Microsoft Kinect Welcome Zone” sia il “Microsoft Surface Bar” usano la tecnologia a sensori di sfioramento e di movimento per consentire un’interazione poliedrica tra gli schermi e il cliente. Il design del bancone centrale e del mobile della lounge si basa sull’idea di forme comunicative che si integrano in una totale continuità e HI-MACS® ha dimostrato di essere il materiale giusto per realizzare questo cloud thinking: la Pietra Acrilica di Nuova Generazione traslucida può essere utilizzata per modellare e integrare forme vibranti e cariche di energia. Ne risultano elementi di arredo che sembrano essere stati versati da uno stampo: senza giunture visibili, omogenei e straordinari. Per design di alta qualità, anche la scelta del colore è cruciale. Per produrre contrasti senza essere sopraffatti dal colore, le superfici del tavolo scultoreo, altrimenti bianche, sono state arricchite da strati sottili di HI-MACS® nero che costituiscono un esempio di grande impatto dell’effetto filigrana che può essere prodotto con questo materiale per dare una sorta di proporzione al mobile lounge a due sezioni di dimensioni considerevoli. I banconi a forma curva consentono lo sviluppo di diversi scenari comunicativi: la presentazione di un prodotto può essere fatta in piedi o da seduti passando rapidamente da una presentazione di gruppo a un incontro individuale. La transizione fluida da conversazione in piedi a presentazione pratica da seduti consente al team di consulenti Microsoft di rispondere individualmente ai vari clienti, prodotti, dimensioni dei gruppi o tipi di presentazioni. I media e la tecnologia, integrati nel mobile, costituiscono la base per questo tipo di presentazione diretta dei prodotti. Oltre alla funzione di espositore, la parete nera di vetro circostante serve inoltre da guardaroba, caffetteria, angolo ristorazione e magazzino. Inoltre, la superficie nera e piatta viene utilizzata come schermo per il proiettore. Sono stati applicati dei motivi grafici alla parete di vetro per creare dei paraventi che acquistano un’importanza particolare per gli elementi divisori delle sale conferenze. Come decorazioni, invece, veicolano il tema progettuale del riflesso e dell’assorbimento separandosi e unendosi. L’atmosfera sensuale e la tecnologia entrano in effettiva simbiosi al Microsoft Briefing Center. Consiglia questo progetto ai tuoi amici Commenta questo progetto