Advertisement Advertisement



Reinterpretazione di una casa contadina dell’Alta Savoia

A Chamonix, in una delle vallate che guardano al Monte Bianco, una residenza di nuova costruzione fa rivivere lo stile architettonico tradizionale del luogo in un’ottica moderna che guarda all’ambiente e alla funzionalità dell’abitare

a cura di Claudia Capperucci

Chalet RDG a Chamonix -®Studio_Oikos

Si chiama Casa RDG ed è un’abitazione plurifamiliare progettata dallo studio milanese Oikos che omaggia lo stile locale della tradizione (le case contadine dell’Alta Savoia) e la vastità dell’ambiente naturale che la ospita. Fil rouge è il legno, vecchio legno massello grezzo, utilizzato per la facciata esterna, le pareti interne, il pavimento, gli arredi.

Il legno è il protagonista dello Chalet RDG a Chamonix -®Studio_Oikos
Il legno è il protagonista sia degli esterni che degli interni

Ad esso si affiancano elementi in granito e in acciao inox e grandi vetrate che veicolano il dialogo tra interni ed esterni e permettono di godersi il panorama del Monte Bianco. Nei bagni prosegue l’abbinamento di grande effetto legno-pietra. Le bacinelle da appoggio soprapiano Vero di Duravit riflettono la luce indiretta e si inseriscono nell’immagine generale di ordine.

Bacinelle Duravit nel bagni dello chalet RDG a Chamonix

Ma oltreché per i suoi retaggi del passato, questa abitazione si distingue anche per il suo spirito attuale come spiega l’architetto Andrea Fiaccadori raccontando il dettagli del progetto.

La casa è stata realizzata ex novo o su una struttura preesistente?
Ex novo con struttura in legno a telaio e con l’uso di isolanti naturali in fibra di legno.

Qual è stato lo spirito progettuale e le linee guida di base che avete seguito?
Il terreno faceva parte della proprietà di una férme del 1700 (vecchia fattoria) tipica della valle, ancora esistente. Il progetto ha voluto riprendere lo stile di detta costruzione con poco uso di legno (solo al piano superiore, un tempo il fienile) e tutta la zoccolatura in intonaco: il tipico corpo allungato, che protegge la proprietà schermando il terreno dalla strada e creando una zona privilegiata, verso sud con vista Monte Bianco, su cui si affaccia la parte giorno e la camera padronale, oltre alle camere del primo piano.

A Chamonix la vista sul monte è fondamentale, per questo abbiamo creato il corpo del soggiorno a doppia altezza con vetrate giganti che permettono la compenetrazione della casa nella natura. Lo stesso camino centrale ricavato in una grossa pietra (4.500 kg) è iconico del fuoco di campo e si piazza al confine tra il soggiorno ed il prato.

La sala dello Chalet RDG a Chamonix con le sue vetrate giganti

Il piano terra è leggermente incassato rispetto al piano di campagna creando la sensazione unica di sedersi nella neve o sull’erba a secondo della stagione.

Avevate richieste specifiche dalla committenza?
Il progetto è stato condiviso fino al più piccolo dettaglio con la committenza. Questa è una peculiarità del nostro studio, non lasciamo mai nulla al caso e crediamo fermamente nella casa per il cliente. Lo chalet doveva avere grandi spazi giorno per accogliere i tanti amici che giornalmente frequantano la casa e tante camere per la numerosa famiglia. Comodità ed eleganza nella semplicità sono stati gli imput principali. Sembra strano parlare di semplicità in una costruzione decisamente di alto livello come questa, ma uno degli obbiettivi, secondo noi raggiunti, è stato proprio quello di introdurre tutti gli elementi di modernità e tecnologia di una casa di oggi senza fare troppo rumore, mantenendo lo spirito della vecchia casa di montagna ovviamente aggiornata alle attuali esigenze.

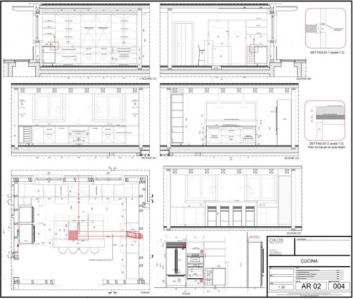
La grande cucina dello Chalet RDG a Chamonix

Quanto tempo avete impiegato per la realizzazione?
La costruzione è durata 16 mesi dall’inizio degli scavi. 650 mq di casa con tecnologia di avanguardia per gli impianti come il riscaldamento geotermico, vmc a doppio flusso con recuperatori di calore, domotica. Arredamento tutto a misura e rivestimento interno in legno del 90% delle pareti.

Può dirci qualcosa sulla scelta dei materiali?
I materiali utilizzati per la costruzione seguono il principio ecologico del recupero e della sostenibilità.

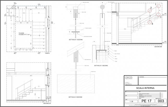
La scala in legno dello Chalet RDG a Chamonix

Come dicevo la struttura delle pareti è in legno e gli isolanti sono in fibra di legno tutto certificato. La struttura del tetto è in legno vecchio di recupero così come tutti i rivestimenti delle pareti ed il parquet. La pietra utilizzata per i bagni e per alcuni pavimenti è granito del Monte Bianco che non viene cavato ma unicamente raccolto da grossi massi trasportati dai ghiacciai, quindi a km zero. Per quanto riguarda sanitari e rubinetteria abbiamo cercato di perseguire lo stile dell’essenziale eleganza e non dell’apparenza.

Ci sono stati punti critici o problemi da risolvere con particolari stratagemmi progettuali?
Il progetto, anche se non si vede, è stato molto complesso, sia dal punto di vista distributivo che da quello tecnico e di direzione lavori. Le esigenze del cliente erano molte arrivando fino all’analisi dei percorsi che, in una casa così grande, diventano rilevanti. Incastrarle non è stato facile. Ci siamo anche trovati a dover sopperire ad alcune evoluzioni distributive dovute a cambiamenti organizzativi a lavori già iniziati. La tecnologia, di cui è pregna la casa, ha implicato uno studio accurato dei passaggi, che non si vedono ma ci sono.

La grande pietra del camino, decisa in fase di cantiere, ha implicato l’uso di rinforzi per distribuire i 4500 kg di peso sulla soletta, la stessa canna fumaria è stata divisa in 2 (una vera e una finta) per replicare il percorso delle capriate in legno e per scostarsi dal colmo del tetto pur lasciando il camino al centro della stanza.

Il grande camino che personalizza la sala dello Chalet RDG a Chamonix

Tutto l’interrato è stato realizzato in vasca bianca, un particolare trattamento del cemento, studiato da Italcementi, che lo rende impermeabile dato che la casa poggia sul vecchio ghiacciaio e a un metro sotto il suolo, dove ci sono dei fiumi sotterranei.

img by ®Studio Oikos



Consiglia questo progetto ai tuoi amici

Commenta questo progetto