Alfonso Femia firma la scuola di Legnago

Un polo scolastico realizzato in due fasi punta su verde, spazi collettivi, corti interne e zone porticate. Un edificio bivalente, utilizzabile in orari e per parti differenti, con spazi didattici flessibili, adattabili secondo le esigenze. Un guscio esterno in legno avvolge e protegge le facciate dei fabbricati

a cura di Pietro Mezzi

Alfonso Femia firma la scuola di Legnago

Indice degli argomenti:

Atelier(s) Alfonso Femia ha vinto il concorso indetto dal comune di Legnago per la progettazione dell’intervento di rigenerazione e potenziamento del complesso scolastico di via Ragazzi del ’99 nel quartiere di Porto di Legnago.

Il progetto riguarda la prima fase di riqualificazione del complesso, consistente nella demolizione e ricostruzione della scuola secondaria di primo grado “G.B. Cavalcaselle”.

Alfonso Femia firma la scuola di Legnago

La nuova scuola ospiterà 225 alunni suddivisi in nove classi e una palestra, aperta anche alla comunità locale. Il progetto integra l’intervento di ridisegno dell’area verde circostante, inserita nel corridoio ecologico del vicino canale Terrazzo.

I temi del progetto

Per Femia lo spazio collettivo è il primo tema importante del progetto, che proprio per questo propone come suo atto fondativo la realizzazione di un filtro verde capace di mettere ordine e di costruire un colonnato naturale: un volume verde che anticipa e costruisce il nuovo plesso scolastico.

Alfonso Femia firma la scuola di Legnago

Nelle intenzioni dei progettisti gli edifici della scuola si aprono verso il territorio e si sviluppano attorno a un’idea di corte aperta «per creare un sistema intimo e funzionale, una pausa tra natura e cielo, uno sguardo tra i momenti di pausa e quelli delle attività».

Scuola a Legnago, LE 3 FASI DEL PROGETTO
Le fasi del progetto (©Atelier(s) Alfonso Femia *AF517)

Operativamente tre sono le fasi del programmala zero, che si riferisce al trasferimento della scuola secondaria; la uno che riguarda la costruzione della nuova scuola secondaria; la due che interesserà il completamento del plesso scolastico.

I riferimenti dimensionali e spaziali del progetto

I dati dimensionali e spaziali hanno rappresentato un altro punto cardine del lavoro dell’Atelier(s) Alfonso Femia attraverso i quali è stato possibile definire lo spazio in cui si inserirà la scuola: le distanze dal confine e dall’edificio scolastico esistente e l’allineamento della facciata.

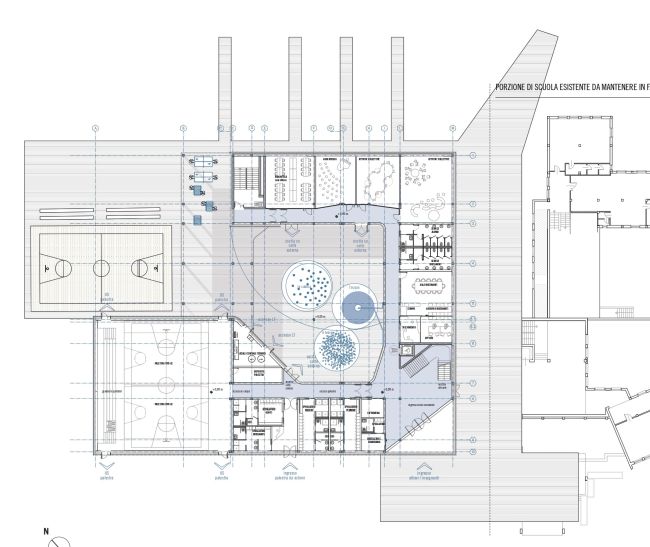
Scuola di Legnago, pianta piano terra
Piano terra (©Atelier(s) Alfonso Femia *AF517)

Gli spazi che circondano la scuola creano un sistema di piazze e di aree verdi sportive che si incastrano, si sovrappongono e formano un sistema sinergico di tre elementi fondamentali: l’acqua, la materia e il paesaggio.

Alfonso Femia firma la scuola di Legnago
Render della scuola di Legnago (©Atelier(s) Alfonso Femia *AF517 & Diorama)

Per il sistema del verde il progetto prevede la realizzazione di un parco-filtro con lo scopo di creare un sistema naturale in grado di ospitare le viabilità di accesso e il sistema di piste ciclabili.

È prevista la definizione di una piazza lineare: una terra di mezzo tra i due edifici, una linea di demarcazione spessa, destinata a dilatarsi in una piazza lineare con la futura realizzazione della scuola primaria. La piastra centrale, con la sua geometria netta, marca la transizione tra l’età dell’infanzia e quella dell’adolescenza, ma si copre di una superficie solida che invita a essere percorsa e attraversata.

Scuola Legnago, pianta primo piano
Primo piano (©Atelier(s) Alfonso Femia *AF517)

Sul versante nord ovest, il nuovo edificio si apre al paesaggio con corti e portici, secondo una grammatica di contrappunto tra il naturale e l’antropizzato, che sarà portata alla sua massima espressione con il completamento dell’intervento e la realizzazione del secondo blocco scolastico.

L’edificio come sistema cronotopico

L’edifico sarà bivalente, un sistema cronotopico che nell’arco della giornata potrà essere utilizzato in diverse aree e orari secondo gli eventi e le necessità.

La palestra – polo sud-ovest dell’edifico – si accende quando il resto della scuola è in modalità off, si duplica con la piazza dello sport esterna e si integra con il parco e con lo spazio più intimo della corte.

Scuola Legnago, SEZIONE LONGITUDINALE
Sezione longitudinale (©Atelier(s) Alfonso Femia *AF517)

Le aule possono avere una diversa configurazione, assemblandosi in spazi maggiori e variando la loro configurazione interna secondo le necessità didattiche: possono così adattarsi a gruppi più o meno numerosi e sono separate da pareti mobili altamente insonorizzanti che, una volta aperte, consentono di raddoppiare lo spazio didattico accorpando le aule contigue.

Scuola Legnago, SEZIONE TRASVERSALE
Sezione trasversale (©Atelier(s) Alfonso Femia *AF517)

Il circuito distributivo interno a forma di anello si apre ai vertici con cannocchiali visuali sul parco e si dilata in una grande loggia scoperta al piano primo: una pausa verde tra le aule, gli ambienti didattici speciali e quelli sportivi. La loggia è un’aula all’aperto, dove osservare dall’alto i movimenti all’interno della palestra.

La logica prestazionale

Il dimensionamento degli ambienti della nuova scuola è sviluppato secondo una logica prestazionale, che cerca una spazialità flessibile e adatta alle esigenze di una didattica evoluta. In questo senso, sono le linee guida ministeriali a orientare l’individuazione delle macro-aree funzionali, conformando il layout in sottoinsiemi chiaramente identificabili ma fluidamente connessi: l’aula, lo spazio di gruppo, i laboratori, lo spazio individuale e quello informale e di relax sono concetti pedagogici che si materializzano in altrettante parti della nuova scuola.

Scuola a Legnago, IL SISTEMA DEL VERDE
Il sistema del verde (©Atelier(s) Alfonso Femia *AF517)

La palestra si protende verso l’esterno sulla piazza dello sport diventando un vero e proprio nuovo nucleo sportivo, che funziona indipendentemente dall’attività scolastica.

La corte interna è invece uno spazio più intimo, che diventa un’isola digitale con panche hi-tech e wireless integrata.
Dalla hall parte il tessuto connettivo vero, che è affacciato sulla corte e su cui si snodano, al piano terra, gli ambienti collettivi e, al primo piano, quelli didattici.

Gli orti didattici sono aree di sperimentazione e sensibilizzazione al tema della sostenibilità e del lavoro manuale.

La biblioteca è l’elemento che si protende verso l’area esterna degli orti didatticicome se fosse un naturale prolungamento.

La loggia è un’aula all’aperto dove osservare e percepire la scuola come un tutto: un paesaggio che trova nella sua varietà la ricchezza di nuove opportunità di apprendimento.

I materiali e le fonti energetiche

La pelle dell’edificio è in legno stabilizzato: un guscio esterno altamente performante ed ecologico che lo avvolge e lo protegge, la cui tecnologia garantisce la conservazione nel tempo dell’involucro, la facile manutenibilità e la massima resistenza alle intemperie.

La pelle cambia cromia identificando i due blocchi: la palestra e il polo scolastico.
Il nuovo edificio sfrutterà la terra e il sole come fonti energetiche primarie Si riuscirà così a risparmiare, rispetto a un sistema tradizionale, fino all’80% sui costi di esercizio.

Il sole alimenta pannelli solari termici (65 metri quadrati di superficie) e pannelli fotovoltaici (50 kWp pari a 264 metri quadrati di pannelli) integrati nella copertura.

La struttura dell’edificio

La struttura è impostata su tre blocchi strutturali separati da giunti, due per l’area scolastica, uno per la palestra. L’adozione di elementi a telaio prefabbricati in cemento armato produce una significativa contrazione dei tempi di esecuzione, a parità di prestazioni.

Le fondazioni sono di tipo continuo e superficiale (a platea) e garantiscono risposte adeguate all’azione sismica e una distribuzione dei carichi uniforme, adatta alle caratteristiche geomorfologiche del terreno e alla bassa profondità della falda.

La copertura della palestra è sorretta da travi in legno lamellare di grande luce, mentre il tetto a falda della scuola ha una struttura portante in pannelli di legno tipo X-lam. Gli elementi strutturali soggetti all’azione sismica sono calcolati ipotizzando un comportamento di tipo dissipativo, per evitare i meccanismi di rottura fragile, rispettare i
criteri di gerarchia delle resistenze e sfruttare il comportamento plastico dei materiali.

«La scuola è il primo luogo in cui una comunità si forma e costruisce il proprio futuro e quelle del paese a cui appartiene. Il progetto per una scuola deve coniugare responsabilità e visione, rapporto con il tempo e senso di appartenenza, dimensione reale e immaginaria legata alle nuove generazioni che la vivranno e che in quei luoghi, di formazione e incontro costruiranno una parte importante della loro vita. Questo è l’assunto fondamentale di un progetto consapevole del proprio potenziale rigenerativo per l’identità e il futuro del territorio in cui si innesta. Lasciare le corti aperte su un lato vuol dire rendere l’architettura una forma di educazione sentimentale e di appartenenza, legata al territorio, al luogo, allo sguardo di tutti coloro che vivranno in quei luoghi. La materia e il tempo. La scuola è un luogo dove la materia e il tempo devono essere parte fondativi del progetto». Alfonso Femia



Consiglia questo progetto ai tuoi amici

Commenta questo progetto