Decumano Carbon Free: l’anello virtuoso che potrebbe essere applicato a tutti i borghi europei

Uno scambio termico tra acqua di fiume e acqua di falda, alimentato da una tubatura che corre sotto strada a cui si allacciano i singoli edifici è alla base della riqualificazione di parte del centro storico di Pesaro, un progetto molto innovativo firmato dallo studio STARTT con ESA Engineering che abbatte i costi dell’energia.

A cura di:

Decumano Carbon Free: l’anello virtuoso che potrebbe essere applicato a tutti i borghi europei

Inclusione sociale ed efficientamento energetico sono i due principi alla base del progetto – modello di riqualificazione nel centro storico di Pesaro (area nord-occidentale) realizzato dal team di STARTT, con ESA Engineering.

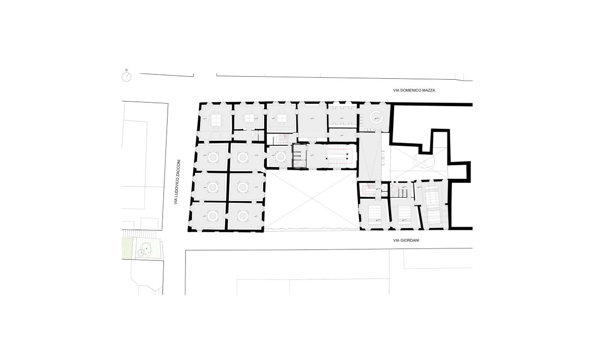
Alla sua base c’è una grande intuizione che potrebbe essere estesa a tutti i centri storici europei e che potrebbe rendere a impatto zero il territorio preservandone il valore storico: ovvero lo scambio termico tra acqua di fiume e acqua di falda. Il progetto di approvvigionamento energetico di Pesaro si basa sulla concezione a spina (elemento di continuità) del disegno urbanistico, funziona sul principio dell’anello di condensazione e interessa una pluralità di edifici.

Decumano Carbon Free: l’anello virtuoso che potrebbe essere applicato a tutti i borghi europei

Decumano Carbon Free: innovazione nella riqualificazione

Noto come Decumano Carbon Free, il progetto di riqualificazione della porzione nord – occidentale del centro di Pesaro, rappresenta un’iniziativa pilota sul fronte della riqualificazione urbana, perché qui, i valori storici del territorio sono stati preservati e integrati con strutture e funzionalità utili alla vita al suo interno e perfettamente compatibili con le necessità dell’ambiente:  un interessante punto di vista attraverso cui guardare la gran parte dei borghi storici del Paese che attendono di essere riqualificati.

La porzione interessata è la punta nord-ovest della struttura poligonale che è definita dalle mura rinascimentali della città di Pesaro ed è interessante vedere come si è riusciti a coniugare la riqualificazione di un sito così antico con una concezione così necessariamente attuale delle tecniche costruttive e di ristrutturazione, quale è, appunto, l’approccio carbon free.

Decumano Carbon Free: l’anello virtuoso che potrebbe essere applicato a tutti i borghi europei

“Questo progetto nasce a quattro mani, due di STARTT e due di ESA Engineering, una delle più importanti società di ingegneria italiane anche in merito alla qualità della ricerca che fanno in tema di ingegneria ambientale e soluzioni per l’energia”, spiega l’architetto Simone Capra – PhD Architect – Founding Partner di STARTT. “Il progetto, diciamo, da punto di vista della relazione tra innovazione e centro storico nasce da una richiesta, quella di coniugare l’intervento sull’antico con la necessità di utilizzare strutture moderne come i pannelli solari, armonizzando l’insieme fatto di finiture, partiti decorativi, terne. Spesso sommando tutti i vincoli restano pochi margini di azione.  Però c’è una condizione che nessuno ha mai indagato e preso in considerazione, ovvero la continuità degli edifici (concepiti come una spina urbana) e le caratteristiche della città di Pesaro. Questa riflessione ci ha portato a concepire un anello di condensazione ad acqua, sfruttando una specificità che è propria di tutti i centri storici d’Europa, ovvero il fatto che nella parte alta ci sono i pozzi da cui le popolazioni antiche attingevano l’acqua per bere e conciare e ai margini del centro storico di solito c’è sempre un fiume che alimenta un fossato. Abbiamo utilizzato questa specificità per mettere in relazione l’anello di condensazione con delle tubature che corrono sottostrada, uno scambio di calore tra l’acqua irraggiata dal fiume (attraverso il sole) e l’acqua di profondità dei pozzi artesiani storici che per i livelli di inquinamento sono ormai dismessi. Il principio della pompa di calore applicato non alla geotermia ma allo scambio delle temperature dei liquidi. In sintesi si tratta di uno scambio termico tra acqua di fiume e acqua di falda e viene alimentato da una tubatura che corre sotto strada a cui si allacciano i singoli edifici”.

Vantaggi energetici progetto Decumano Carbon Free a Pesaro

Risparmio energetico rispetto a un progetto tradizionale del progetto Decumano Carbon Free a Pesaro

L’infrastruttura viaria ha permesso di installare le tubazioni a cui sono poi state allacciate le istituzioni pubbliche. La scommessa adesso (post 2026) è quella di verificare se questo sistema permette l’estensione delle utenze non solo alle pubbliche, ma anche alle private che sono all’interno dell’anello, nel quadrante nord-occidentale. Si tratta del primo esperimento di questo genere di natura pubblica.

Strategia energetica dell'anello a condensazione ad acqua realizzato per la riqualificazione del centro storico di Pesaro

Il sistema serve per il condizionamento perché permette di raggiungere le temperature di riscaldamento e di raffreddamento in estate e in inverno più facilmente e a partire dallo scambio termico e quindi consente di risparmiare energia.

Il progetto permette di abbattere il grosso delle emissioni e su questo poi si è intervenuti con ulteriori piccoli elementi collaboranti laddove la Sovrintendenza lo ha permesso, con i sistemi tradizionali, pannelli fotovoltaici o solari, laddove si potevano installare. Ma anche il sistema delle luci Led, il controllo dell’acqua sanitaria attraverso l’uso delle cisterne o dell’acqua piovana, i rubinetti dotati di funzione di controllo dell’acqua per eliminare gli sprechi.

“Decumano Carbon Free è segnalato dall’alta commissione del Ministero delle Infrastrutture nell’indice dei migliori progetti finanziati all’interno del PINQUA (Programma Innovativo della Qualità dell’Abitare) prima misura del PNRR”, continua l’architetto Capra. “Il PINQUA proponeva di realizzare nuovi interventi di edilizia residenziale con i servizi annessi. Abbiamo proposto di lavorare su consumo di suolo zero, intervenendo sulla rigenerazione di una parte di centro storico, con un sistema per agopuntura che, a seconda degli edifici dismessi e delle loro caratteristiche storiche di patrimonio, abbiamo inserito nuovi interventi di case popolari oppure il recupero di siti culturali, come la biblioteca oliveriana (Ente Olivieri)”.

Decumano Carbon Free: l’anello virtuoso che potrebbe essere applicato a tutti i borghi europei

Alcune edificazioni sono state destinate a edilizia sociale, come le case di Carlo Aymonino e altri edifici diffusi, un progetto che si inserisce negli interventi per l’inclusione sociale e che va anche ad arginare, in parte, il fenomeno dell’over tourism che affligge molti centri storici con la conseguente spersonalizzazione.

Teatro Rossini – nuovo progetto di teatro nel teatro

Nella più ampia riflessione che lo studio STARTT ha dedicato alla città di Pesaro e che ha contribuito al programma di Pesaro Capitale della Cultura 2024, c’è anche il nuovo progetto per il Ridotto del Teatro Rossini.

Teatro Rossini – nuovo progetto di teatro nel teatro a pesaro
Teatro Rossini – photo by Alessandro Penso

 Qui STARTT ha realizzato lo spazio FLEXI, un volume dinamico e riconfigurabile per le arti performative, la musica, la prosa, il teatro-danza, gli eventi associativi e politici. Lo spazio era caratterizzato da due pilastri centrali e organizzato su tre diverse quote, conseguenza di successive espansioni dell’edificio. È stato trasformato il volume con la rimozione dei pilastri e la realizzazione di un secondo spazio scenico, attraverso un sistema per lo scorrimento di un doppio strato di pareti tessili lungo un binario appeso al soffitto,
dove alloggia un graticciato teatrale. Le tende possono chiudere o aprire lo spazio a seconda delle necessità, dialogando con il partito architettonico degli anni Trenta.

Lo studio STARTT 

Lo studio di architettura e trasformazioni territoriali STARTT opera nel campo dell’architettura, dell’urban design e degli spazi per la cultura. Fondato dagli architetti Simone Capra, Claudio Castaldo e Dario Scaravelli, STARTT pensa l’architettura all’interno della trasformazione del territorio e ha un approccio sartoriale e sistemico. Ha ricevuto diversi premi e segnalazioni tra i quali il premio europeo per l’architettura under 35, YAP MAXXI 2011, con il progetto Whatami. Nel 2023 il progetto Omaggio a Kounellis per il Museo Archeologico Oliveriano di Pesaro è stato inserito nella Selezione del Premio Italiano di Architettura 2023.

Scheda Progetto

  • Progettista: STARTT, ESA Engineering
  • (sostenibilità ed energia)
  • Luogo: Pesaro
  • Committente: Pubblico (Comune di Pesaro)
  • Cronologia realizzazione: il sistema dei progetti è in corso di realizzazione (termine previsto per il 2026)

 

Consiglia questo approfondimento ai tuoi amici

Commenta questo approfondimento