START-Ivry, un nuovo concetto di housing sociale dove il progetto è dettato dal sistema di vita 24/12/2025
START-Ivry, un nuovo concetto di housing sociale dove il progetto è dettato dal sistema di vita 24/12/2025
Tecnologia e innovazione in edilizia: occorre aprirsi alla digitalizzazione e all’inclusione 21/07/2025
I materiali compositi: innovazione strutturale e libertà progettuale nell’architettura contemporanea 12/01/2026
Architetture verticali: le nuove tecniche per costruire grattacieli sostenibili e all’avanguardia 16/12/2025
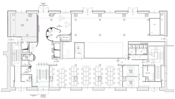
Un edificio tardo Liberty a pochi passi dalla stazione Centrale di Milano si trasforma e diventa la sede di un nuovo istituto bancario, Illimity Bank, che si rivolge alle piccole e medie imprese. I tecnici di Gsp Italia si sono occupati di tutto: dal project management alla progettazione, dalle pratiche edilizie alla direzione lavori. I lavori consegnati in soli sei mesi a cura di Pietro Mezzi Prima ad di Intesa, poi ministro, più recentemente tentato dalla politica. Oggi, Corrado Passera, con la sua nuova banca Illimity Bank, torna alle origini. Con un modello di business altamente sofisticato e fortemente tecnologico, che si rivolge alle piccole medie imprese. Lo fa sulla piazza finanziaria italiana più importante, quella di Milano, lo fa ristrutturando in via Ferrante Aporti, a due passi dalla stazione Centrale, un edificio tardo Liberty degli anni Trenta. Il compito di ristrutturare il vecchio immobile in un nuovo istituto bancario è toccato a Gsp Italia, che da giugno a dicembre dello scorso anno ha trasformato l’idea originaria in un luogo di lavoro operativo. Interni della Illimity Bank di Milano La società, fondata nel 2003, ha sede a Milano ed è specializzata in project management, ingegneria, architettura, esperta nella gestione e sviluppo di progetti real estate. Per Ferrante Aporti, Gsp Italia si è occupata di tutto: dal project management alla progettazione, dalle pratiche edilizie alla direzione lavori. Il filo conduttore del progetto è stata la trasparenza, per gli ambienti interni e le facciate e, in particolare, per il volume centrale, alto quattro piani, su cui si affacciano tutti gli uffici. Un’operazione complessa, sia per il poco tempo a disposizione sia per le dimensioni dell’opera: cinque piani fuori terra, quattromila metri quadrati di superficie da trasformare. L’intervento ha riconvertito gli spazi esistenti in relazione alle nuove esigenze. Un’operazione che ha comunque previsto la realizzazione di una nuova reception e di un’area eventi al piano terra, la sistemazione delle aree open space ai vari piani, la realizzazione di nuovi uffici direzionali al quarto piano e di sale riunioni a tutti i livelli, oltre ovviamente alle dotazioni tecnologiche, che rappresentano, per funzioni sofisticate di questo tipo, una componente fondamentale. Gsp Italia è stata fondata dall’architetto Marco Schiavi; suoi attuali partner sono Enrico Caglio e Andrea Radeglia, entrambi architetti. Gli ultimi lavori realizzati hanno riguardato l’ampliamento dell’headquarter Google di Milano e la progettazione dello Store Primark a Tilburg in Olanda. Pianta piano terra Pianta piano quarto img by Gsp Italia Consiglia questo progetto ai tuoi amici Commenta questo progetto