I concorsi come specchio dell’architettura che sarà: soluzioni creative per le sfide globali 05/01/2026
START-Ivry, un nuovo concetto di housing sociale dove il progetto è dettato dal sistema di vita 24/12/2025
START-Ivry, un nuovo concetto di housing sociale dove il progetto è dettato dal sistema di vita 24/12/2025
Tecnologia e innovazione in edilizia: occorre aprirsi alla digitalizzazione e all’inclusione 21/07/2025
I materiali compositi: innovazione strutturale e libertà progettuale nell’architettura contemporanea 12/01/2026
Architetture verticali: le nuove tecniche per costruire grattacieli sostenibili e all’avanguardia 16/12/2025
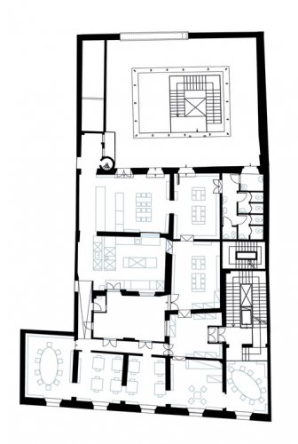
Obiettivo del progetto Eataly di Firenze, oltre all’armonizzazione del concept al contesto storico architettonico dell’edificio, la restituzione in chiave sostenibile di un oggetto a spiccata vocazione energivora. La complessità del progetto derivava dalla necessità di combinare funzioni diverse che hanno come motivo comune l’espressione del culto e della cultura del cibo. Aule didattiche (scuola di cucina, percorsi per visite guidate, dimostrazioni …), sale di lettura, sale riunioni, uffici con i relativi spazi di servizio (bagni, ripostigli, magazzini), un ristorante e spazi di vendita erano le funzioni da organizzare e rendere armoniche all’ambiente esistente. L’attività didattica, finalizzata alla valorizzazione delle tradizioni culinarie italiane, è uno dei momenti essenziali del progetto che è stato sviluppato attraverso librerie tematiche, audiovisivi, zone di consultazione, aree didattiche con schermi interattivi presenti in tutti gli ambienti. Per definire gli spazi funzionali alle attività sono state parzialmente demolite le murature, aumentando le dimensioni degli ambienti destinati alla didattica e alle degustazioni, senza alcun incremento di Superficie Utile Lorda. I lavori di demolizione sono stati ripresi di intonaco e successivamente sono state tinteggiate le porzioni di muratura conservate. Gli ambienti sono stati adeguati alle normative in tema di barriere architettoniche. Il tema per la sede fiorentina di Eataly è il Rinascimento: un’evocazione di carattere squisitamente multimediale con riferimenti audiovisivi e testuali e riferimenti concreti attraverso assaggi e degustazioni. Il progetto architettonico ha inteso restituire un’immediata riconoscibilità e fruizione degli ambienti a finalità evocativa. Oltre alle molteplici esposizioni monotematiche attinenti ai vari reparti nei quali si sviluppa Eataly, il progetto prevede numerosi spazi dedicati alla vendita e/o alla consultazione gratuita dei testi. Gli interventi Nel rispetto dellle complesse norme che regolano l’inserimento di attività commerciali in immobili vincolati, gli interventi sono consistiti nel risanamento conservativo, restauro e conservazione. L’obiettivo era chiaramente quello di migliorare le prestazioni e adeguare gli spazi alle nuove funzioni previste. Per la localizzazione delle nuove attività si è in primo luogo tenuto conto dei numerosi aspetti artistici e decorativi presenti, tra ci soffitti decorati del periodo di Firenze capitale, attraverso interventi edilizi contenuti che rispondessero a esigenze esclusivamente di tipo normativo-funzionali. Per la collocazione delle varie funzioni ai diversi piani il progetto ha previsto una ridistribuzione dei percorsi e degli ambienti fruibili dagli utenti ottenuti con minime modifiche alle aperture e ai tramezzi esistenti. Tale scelta è dovuta alla volontà di preservare l’impianto planimetrico esistente, la generale organizzazione degli ambienti e gli elementi di pregio storico e architettonico. Gli interventi di manutenzione ordinaria hanno riguardato il ripristino delle pavimentazioni, rimuovendo quelle danneggiate esistenti, caratterizzate da fenomeni di fessurazione e mancata aderenza al massetto di supporto. E’ stata effettuata la manutenzione ordinaria e straordinaria degli impianti esistenti, l’adeguamento e l’integrazione degli stessi, con particolare riferimento agli impianti di tipo meccanico, elettrico ed antincendio, necessari allo svolgimento delle funzioni previste in progetto. Al piano terra, al piano ammezzato e nelle aree soppalcate sono state collocate le aree didattiche, una zona di mercato, ambienti per la ristorazione, la libreria e spazi di servizio. L’adeguamento distributivo degli spazi ha imposto l’apertura di passaggi e di porte per creare nuovi collegamenti tra i vani, garantendo un attraversamento e una circolazione ottimale degli ambienti.La scala ha una struttura portante è in acciaio e vetro strutturale; la grande copertura ,che illumina la sala centrale e mette in comunicazione con il piano superiore, è invece realizzata in vetro strutturale. Il vetro, doppio strato temperato stratificato con interposta pellicola e trattamento basso-emissivo, è collegato da “ragnetti” fissati ad elementi metallici. Al piano terzo è stato realizzato un nuovo solaio per trasformare un ambiente unico in due locali tecnici e un’apertura sul solaio di copertura per la localizzazione di apparecchiature tecniche a cielo aperto, necessarie per la climatizzazione degli ambienti. Illuminotecnica e impiantistica Il sistema di illuminazione si basa sulla grande corte vetrata, fulcro fisico dell’ambiente, in grado di assicurare una quota importante di luce naturale. Questo grande pozzo di luce, che collega i piani della nuova sede di Eataly, è integrato da un sistema di illuminazione diffusa, con sorgenti alloggiate prevalentemente nei controsoffitti. Negli ambienti affrescati è stata scelta obbligata quella di utilizzare le pareti (libere da interventi artistici) come elementi ospitanti le luci. Cavi d’acciaio orizzontali sostengono corpi illuminanti che propongono luce diffusa. In tutti gli ambienti sono state utilizzate luci LED Gli affreschi sono protetti con un raffinato sistema di regolazione igrotermica che termoregola anche tutti gli altri spazi. L’impianto di climatizzazione è unico per tutti i 3 piani, e si basa su un gruppo frigo polivalente aria/acqua, alimentato con energia elettrica, con distribuzione del caldo/freddo ai piani mediante batterie di scambio. Le batterie a loro volta alimentano unità di trattamento aria al piano terreno, e unità fan-coil ai piani superiori. Unità di prelievo e immissione dell’aria sono posizionate in copertura. L’impianto antincendio è tipo misto , con idranti e sprinkler; questi ultimi sono alimentati attraverso un deposito posto nel sottosuolo. Consiglia questo progetto ai tuoi amici Commenta questo progetto