Arriva la Riforma dell’Edilizia, cosa cambia riguardo silenzio assenso, digitalizzazione e sanatorie storiche 08/12/2025
Tecnologia e innovazione in edilizia: occorre aprirsi alla digitalizzazione e all’inclusione 21/07/2025
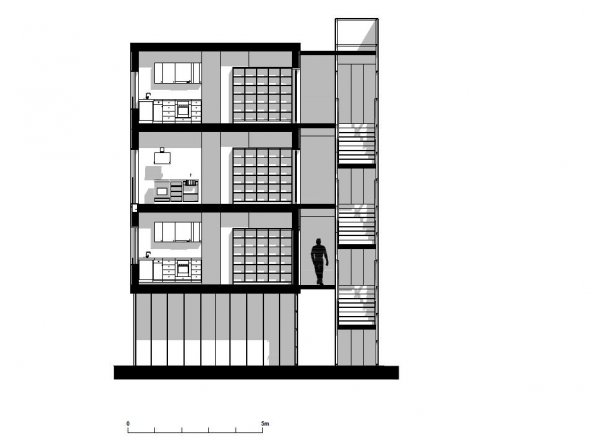
Si chiama Prefarch Cfs. È il progetto sperimentale degli architetti di Prefarch e di Cogi. L’obiettivo è promuovere la ricerca e l’applicazione della progettazione per componenti prefabbricati e di sperimentare una tecnologia leggera in acciaio formato a freddo per la realizzazione di prototipi residenziali caratterizzati da efficienza energetico-ambientale e ottimizzazione costi-benefici In Italia, gli edifici in acciaio non hanno mai trovato terreno fertile. Si tratta di un esito dipeso dalla cultura tecnica approssimativa di progettisti e imprese nell’uso di questo materiale e dalla preferenza accordata dalla committenza alle tecniche costruttive cosiddette massive (muratura, cemento armato e legno). Due fattori che hanno prodotto numericamente ben poche realizzazioni. Chi non ha perso le speranze nella produzione industrializzata di elementi in acciaio per l’edilizia sono i progettisti e i produttori attualmente impegnati in un progetto di ricerca, in fase di sviluppo, per la realizzazione di prototipi abitativi cold formed steel. Render del prototipo Prefarch Cfs 1, tipologia casa isolata (Prefarch) Il progetto si chiama Prefarch Cfs, i progettisti sono il team di architetti di Prefarch (Prefabrication Architecture), i produttori sono i soci di Cogi, una società che utilizza la tecnologia Cogi Steelmax. Obiettivo degli architetti è promuovere la ricerca e l’applicazione della progettazione per componenti prefabbricati, quello dei costruttori di sperimentare una tecnologia leggera in acciaio formato a freddo per la realizzazione di prototipi residenziali. Render del prototipo Prefarch Cfs 1, tipologia casa isolata (Prefarch) Il tema di fondo della ricerca è l’architettura di massa in carpenteria leggera in acciaio, che trova il punto di riferimento culturale e progettuale in Jean Prouvè, architetto e designer francese (1901-1984). “Scopo della ricerca – afferma l’architetto milanese Diego De Nardi – è connettere la qualità tipologico-formale, l’efficienza energetico-ambientale e l’ottimizzazione costi-benefici in un edificio con tecnologia leggera in acciaio. È un progetto Bim based, per l’innovazione della filiera dell’industria delle costruzioni, attraverso la ri-connessione di progetto e produzione edilizia, applicando sistemi integrati di controllo progettuale, costruttivo e gestionale dei manufatti. Muove dalla convinzione, in un’epoca segnata dai forti squilibri in termini socio-economici, che attraverso la costruzione per componenti e l’industrializzazione edilizia, si possano raggiungere elevati standard abitativi a costi accessibili, per un’architettura di massa orientata alla qualità del costruito in termini iconici e insediativi”. Render del prototipo Prefarch Cfs 2, tipologia casa in linea (Prefarch) I temi fondativi del progetto sono l’industrializzazione dell’attività edilizia (produzione seriale di componenti industrializzati bi-tridimensionali cold formed steel, riduzione dei tempi di esecuzione, alta flessibilità, ridotti costi di manutenzione, alta riciclabilità dei componenti) e una nuova qualità del prodotto-casa (acustica, termica, illuminotecnica, energetica e ambientale). Render del prototipo Prefarch Cfs 2, tipologia casa in linea (Prefarch) Il progetto di ricerca prevede l’applicazione di componenti industrializzati seriali a differenti tipologie edilizie – casa isolata, casa in linea, addizione volumetrica – utilizzando il sistema costruttivo Cfs. Render del prototipo Prefarch Cfs 2, tipologia casa in linea (Prefarch) Per la tipologia a casa isolata, il prototipo (Prefarch Cfs 1) è un edificio residenziale Nzeb (Nearly zero energy building) concepito per applicare in modo innovativo i termini di modularità (4 metri per 3), flessibilità e trasformabilità connessi al sistema costruttivo. La casa presenta una serie di funzioni tipiche (soggiorno, cucina, camera da letto, bagno…), personalizzabili in modo semplice o secondo relazioni complesse in un diagramma variabile in funzione dell’intensità d’uso della casa. Secondo la logica incrementale, patii e logge sono dispostivi architettonici utili al controllo ambientale, in quanto capaci di caratterizzare il livello di porosità dell’edificio e quindi declinabili in funzione delle specifiche climatiche localizzative. Per la tipologia casa in linea, il prototipo (Prefarch Cfs 2) è un edificio residenziale concepito per il social housing, Nzeb oriented, declinato in modo innovativo, applicando i termini di modularità, flessibilità e trasformabilità connessi al sistema costruttivo Cfs. Il prototipo è concepito su una trama modulare di quattro metri per tre, variabile in funzione dell’intensità d’uso della casa. Tale scelta tipologica è stata ritenuta strategica sia in termini di variazione delle unità abitative nel tempo sia in termini di gestione del sistema impiantistico, senza che ciò possa generare interferenze con gli abitanti. Per la tipologia di addizione volumetrica, il prototipo (Prefarch Cfs 3) è un sistema costruttivo applicabile negli incrementi volumetrici in copertura. Si tratta di addizioni di volumi strutturalmente e geometricamente dipendenti dalle caratteristiche e dalle capacità portanti dell’edificio preesistente. Oltre a garantire una potenzialità distributiva che coinvolge inevitabilmente anche i sistemi di collegamento verticali, tale sistema offre la possibilità di sostituire volumi obsoleti in favore di nuove unità abitative o di alloggiare in copertura le nuove dotazioni impiantistiche e di prevedere l’implementazione delle reti mediante nuovi circuiti a calata dall’alto. Consiglia questo approfondimento ai tuoi amici Commenta questo approfondimento